Baden-Baden

3 Wohneinheiten Bestand + projektiertes Grundstück 11 WE mit ca. 821 qm

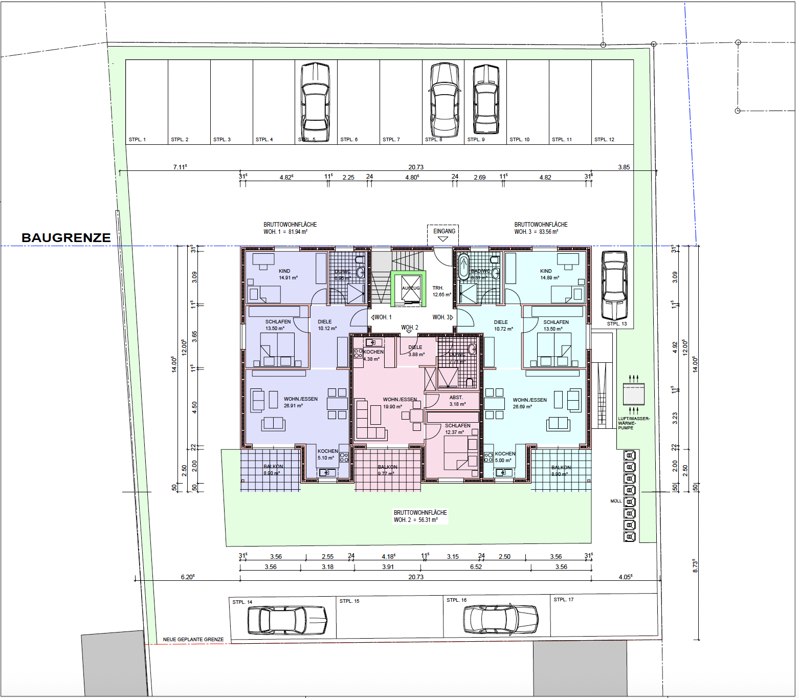
Wir freuen uns, Ihnen diese besondere Altbauimmobilie aus dem Jahr 1899 vorstellen zu dürfen. Dieses beeindruckende Gebäude besticht durch seinen historischen Charme und bietet eine Gesamtwohnfläche von ca. 342 Quadratmetern, verteilt auf drei großzügige Wohneinheiten. In massiver Bauweise errichtet und voll unterkellert, zeugt dieses Haus von handwerklicher Qualität und solider Konstruktion.

Die Immobilie wird derzeit mit einer effizienten Ölzentralheizung beheizt, was eine zuverlässige Wärmeversorgung auch in den kälteren Monaten gewährleistet. Trotz ihres historischen Charmes und der attraktiven Raumaufteilung ist die Immobilie renovierungsbedürftig, was Ihnen die einzigartige Gelegenheit bietet, dieses Juwel ganz nach Ihren Vorstellungen und Bedürfnissen zu gestalten.

Betreten Sie die einzelnen Wohneinheiten und lassen Sie sich von den hohen Decken, großen Fenstern und der klassischen Altbauarchitektur verzaubern. Jede Einheit bietet großzügige Räumlichkeiten, die mit etwas Liebe zum Detail und einer sorgfältigen Renovierung wieder in neuem Glanz erstrahlen können.

Der vollunterkellerte Bereich bietet zusätzlichen Stauraum und vielseitige Nutzungsmöglichkeiten. Ob als Weinkeller, Hobbyraum oder Werkstatt – Ihrer Kreativität sind keine Grenzen gesetzt.

Die Immobilie liegt in einer ruhigen und dennoch zentralen Lage, die eine hervorragende Anbindung an das öffentliche Verkehrsnetz und die Infrastruktur der Umgebung bietet. Geschäfte des täglichen Bedarfs, Schulen und Freizeiteinrichtungen sind bequem zu erreichen.

Nutzen Sie diese seltene Gelegenheit, ein Stück Geschichte zu erwerben und ihm neues Leben einzuhauchen. Dieses Haus bietet nicht nur ein Zuhause, sondern auch eine einzigartige Investitionsmöglichkeit mit vielfältigen Entwicklungspotentialen.
Gerne stehen wir Ihnen für weitere Informationen oder einen Besichtigungstermin zur Verfügung. Lassen Sie sich dieses außergewöhnliche Angebot nicht entgehen und entdecken Sie die zahlreichen Möglichkeiten, die diese charmante Altbauimmobilie zu bieten hat.

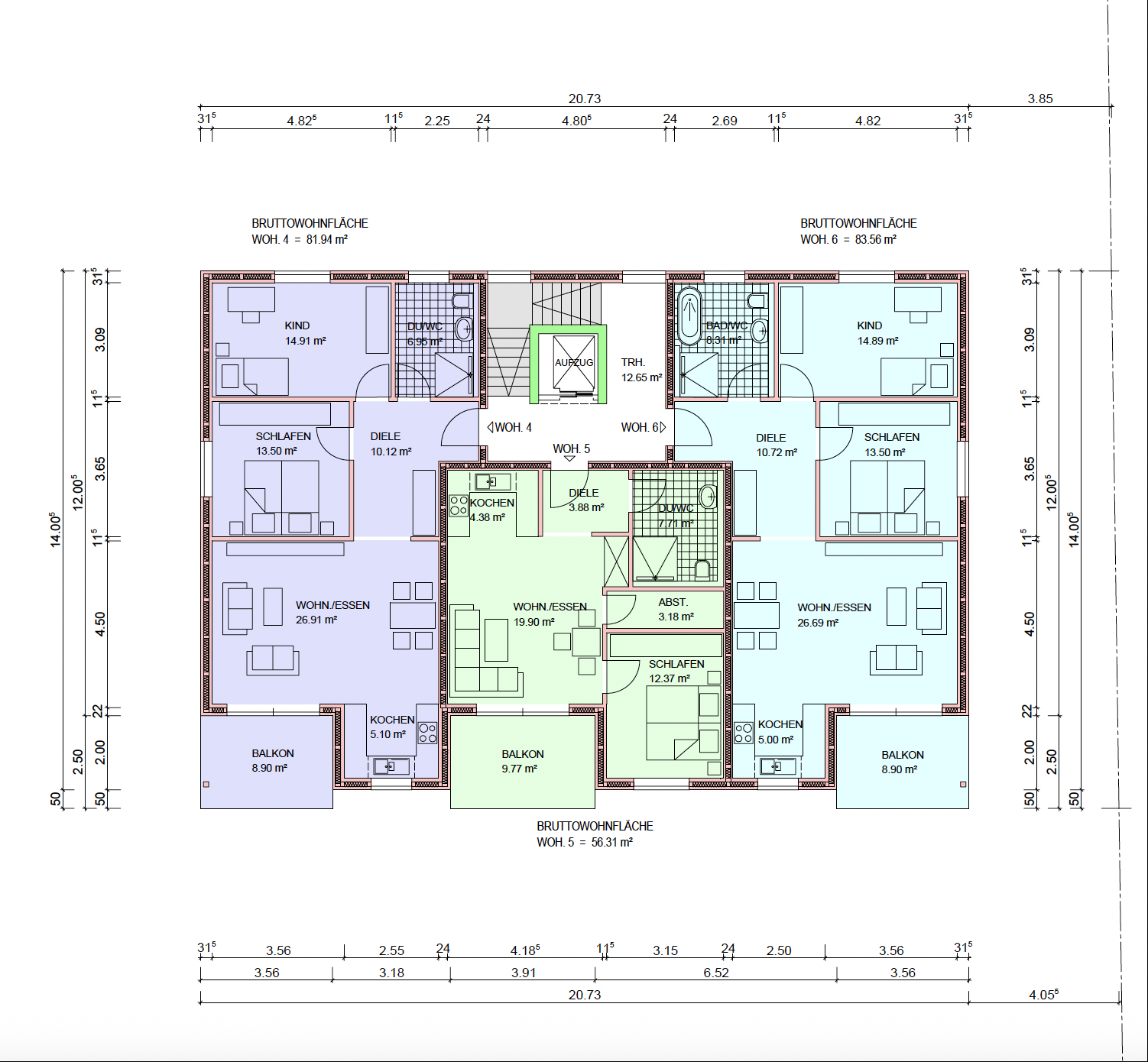
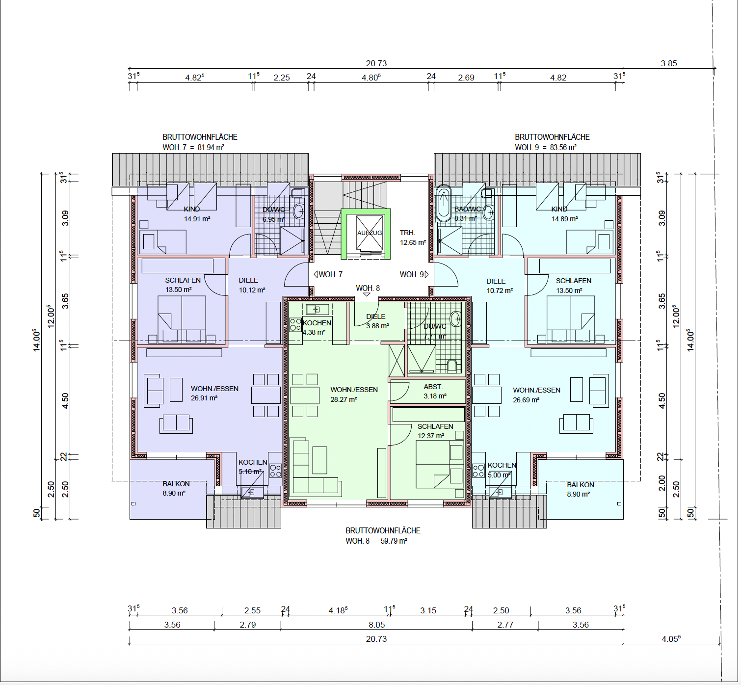
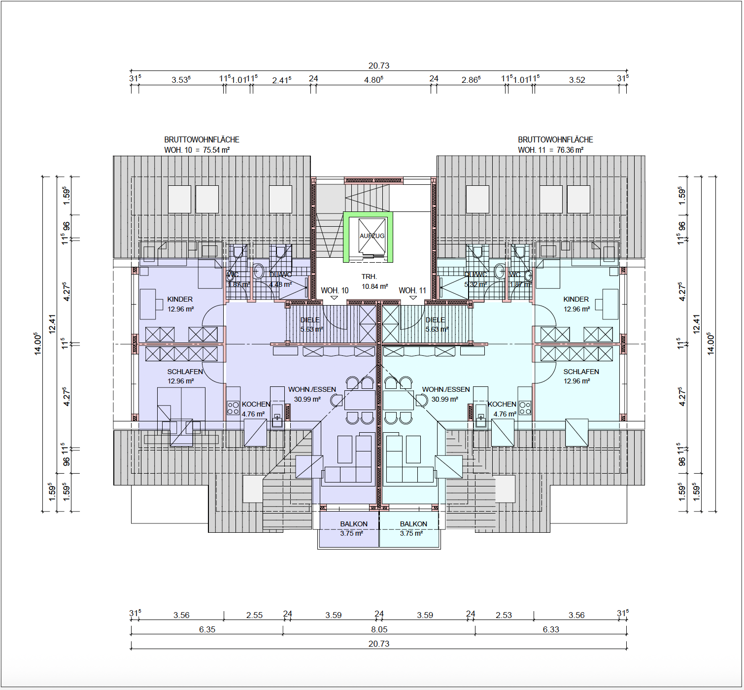
Hinzu kommt im hinteren Bereich des Grundstücks ein projektiertes Objekt mit 11 Wohneinheiten und einer Gesamtwohnfläche von ca. 821 qm.

Grunddaten

Objektart: Haus
Objekttyp: Mehrfamilienhaus
Adresse: Bitte Kontakt aufnehmen für Informationen.
Baujahr: 1899
Letzte Modernisierung Altbau
Verfügbar: sofort
Lage: Ortslage

Flächenaufstellung

Wohnfläche: 1162.81 m²
Grundstücksfläche: 1989.92 m²

Raumangebot und Ausstattung

Zimmer: 12
Schlafzimmer 6
Badezimmer 3
Gäste-WC: 1
Zustand: sanierungsbedürftig
Kamin: Vorhanden
Unterkellerung: Keller
Boden: Fliesen

Preis

Kaufpreis: 1.450.000 €
Käuferprovision: 4,76%

Ausstattung

- Voll unterkellert (Hohe Kellerdecke)
- 3 Wohneinheiten im Bestand mit ca. 342 qm Wohnfläche
- Ölzentralheizung
- Altbau
- Wintergarten und Terrasse bei EG Einheit
- Potential Dachausbau ca. 75 qm

- Projekt im hinteren Teil des Grundstücks mit einer Gesamtwohnfläche von ca. 821 qm und 11 Wohneinheiten

Lage

Herzlich willkommen in Steinbach bei Baden-Baden, einer malerischen und begehrten Lage, die für ihre natürliche Schönheit und ihre erstklassige Lebensqualität bekannt ist. Diese charmante Gemeinde liegt eingebettet in die idyllische Landschaft des Schwarzwaldes und bietet eine harmonische Verbindung aus ländlicher Ruhe und urbaner Nähe.

Ihre neue Wohnung befindet sich inmitten dieses zauberhaften Umfelds und bietet Ihnen die perfekte Balance zwischen Naturnähe und städtischer Anbindung. Genießen Sie morgendliche Spaziergänge entlang der sanften Hügel und bewundern Sie die üppige Vegetation und die klare Luft, die Ihren Geist erfrischen und beleben.
Steinbach bei Baden-Baden ist nicht nur ein Ort der Erholung, sondern auch ein lebendiges Gemeinwesen mit einer Vielzahl von Freizeit- und Erholungsmöglichkeiten.

Entdecken Sie lokale Geschäfte, gemütliche Cafés und traditionelle Restaurants, in denen Sie regionale Köstlichkeiten probieren können.

Die Nähe zu Baden-Baden, einer der schönsten Kurstädte Europas, bietet Ihnen zusätzliche Vorzüge. Erleben Sie kulturelle Highlights, wie das weltberühmte Festspielhaus oder entspannen Sie in den heißen Thermalquellen und lassen Sie den Alltagsstress hinter sich.

Mit einer erstklassigen Verkehrsanbindung ist Steinbach bei Baden-Baden auch für Pendler ideal gelegen. Die Autobahn und öffentliche Verkehrsmittel ermöglichen eine schnelle und unkomplizierte Anbindung an die umliegenden Städte und bieten Ihnen somit Flexibilität und Komfort.

Willkommen in Steinbach bei Baden-Baden, wo die Schönheit der Natur auf die Annehmlichkeiten des modernen Lebens trifft und Ihnen ein Lebensstil geboten wird, von dem Sie schon immer geträumt haben.

Sie sehen gerade einen Platzhalterinhalt von Google Maps. Um auf den eigentlichen Inhalt zuzugreifen, klicken Sie auf die Schaltfläche unten. Bitte beachten Sie, dass dabei Daten an Drittanbieter weitergegeben werden.

Mehr Informationen

Energieausweis

Energieausweis: Verbrauchsausweis
Gültig ab: 27.09.2032
Wesentlicher Energieträger Öl
Endenergiebedarf 161.4 kWh/(m²*a)
Energieeffizienzklasse: F

Exposé anfordern

Innerhalb von 24 Stunden erhalten

* Pflichtangaben
 SSL-verschlüsselt
Kauf

630.000 €
Walzbachtal,
75045

Modernes Reihenendhaus A+ in Wössingen – hell, energieeffizient und familienfreundlich

Haus

Objektart
5

Zimmer
147.79 m²

Wohnfläche
153 m²

Grundstück
Kauf

488.000 €
Hochstadt (Pfalz),
76879

Kernsaniertes Fachwerkhaus – perfekt für Familien mit Zukunftsplänen

Haus

Objektart
5

Zimmer
149.7 m²

Wohnfläche
780 m²

Grundstück
Kauf

399.000 €
Wörth am Rhein,
76744

Charmantes Einfamilienhaus mit Garten, Ausbaureserve & Top-Lage in Maximiliansau

Haus

Objektart
6

Zimmer
101.9 m²

Wohnfläche
339 m²

Grundstück
Kauf

650.000 €
Karlsbad,
76307

Stilvoll saniertes Einfamilienhaus mit großem Grundstück in ruhiger Lage von Langensteinbach

Haus

Objektart
5

Zimmer
164.9 m²

Wohnfläche
918 m²

Grundstück
Kauf

675.000 €
Karlsruhe,
76189

Sanierungsbedürftiges Mehrfamilienhaus mit 5 Einheiten, Ausbaureserve & Doppelgarage in Daxlanden

Haus

Objektart
12

Zimmer
309.65 m²

Wohnfläche
442 m²

Grundstück
Kauf

849.000 €
Karlsruhe,
76189

Viel Platz für die ganze Familie – modernes Zuhause mit Einliegerwohnung

Haus

Objektart
7

Zimmer
230 m²

Wohnfläche
434 m²

Grundstück

Online-Bewertung

Immobilie bewerten