Karlsbad

Familientraum mit 8 Zimmern auf 240 qm Wohnfläche in Ittersbach

Dieses großzügige Einfamilienhaus aus dem Jahr 1971 besticht durch seine weitläufige Wohnfläche und das beeindruckende Grundstück – ideal für Familien, die Raum zur Entfaltung suchen.

Die Immobilie liegt ruhig an einem Wendehammer, wodurch kaum PKW-Verkehr herrscht. Dank der optimalen Westausrichtung genießen Sie ab Mittag bis in die Abendstunden herrlichen Sonnenschein in Ihrem Garten.

Der liebevoll angelegte Garten bietet ausreichend Platz für Spiel, Entspannung und gesellige Stunden. Kinder können sich hier ungestört austoben, während Erwachsene in gemütlicher Atmosphäre zur Ruhe kommen. Die großzügige Terrasse lädt zu ausgedehnten Grillabenden mit Familie und Freunden ein, während die angrenzende Gartenhütte praktischen Stauraum für Gartengeräte und Möbel bietet.

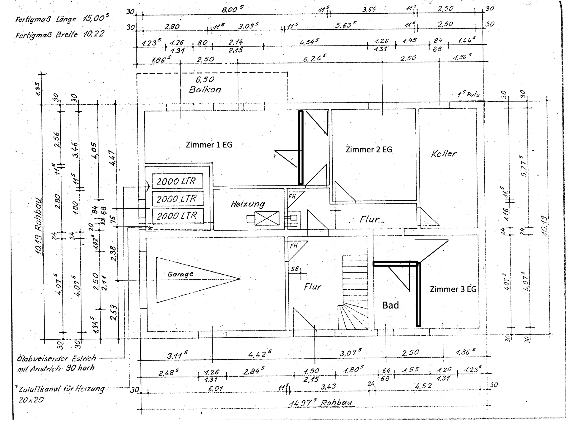
Im Erdgeschoss erwarten Sie drei vielseitig nutzbare Zimmer, die sich ideal als Schlaf-, Hobby-, Büro- oder Spielzimmer eignen. Zudem gibt es hier ein Badezimmer mit Badewanne und WC sowie einen praktischen Abstellraum.

Das Obergeschoss überzeugt mit einem lichtdurchfluteten Wohnbereich und einer großzügigen Küche, die zum gemeinsamen Kochen einlädt. Der angrenzende Wintergarten erweitert den Wohnraum und schafft eine behagliche Atmosphäre mit Blick ins Grüne. Vier weitere Schlafzimmer, ein weiteres Badezimmer sowie ein Gäste-WC runden das Raumangebot perfekt ab.

Für Ihre Fahrzeuge stehen Ihnen eine große Einzelgarage sowie ein zusätzlicher Carport zur Verfügung. Dieses charmante Haus bietet ideale Voraussetzungen für eine Familie, die ein ruhiges Wohnumfeld mit viel Platz und hoher Lebensqualität sucht.

Grunddaten

Objektart: Haus
Objekttyp: Einfamilienhaus
Adresse: Bitte Kontakt aufnehmen für Informationen.
Baujahr: 1971
Verfügbar: sofort

Flächenaufstellung

Wohnfläche: 240 m²
Grundstücksfläche: 895,00 m²

Raumangebot und Ausstattung

Zimmer: 8
Schlafzimmer 6
Badezimmer 2
Badfenster: Ja
Gäste-WC: 1
Zustand: renovierungsbedürftig
Ausstattung: Standard
Einbauküche Vorhanden
Anzahl Stellplätze: 1
Boden: Laminat
Boden: Fliesen
Anzahl Balkone: 1

Ausstattung

- 8 Zimmer
- ca. 240,00 qm Wohnfläche
- ca. 895,00 qm Wohnfläche
- Garage für einen PKW
- Carport für einen PKW
- Wintergarten / Balkon
- Terrasse
- Großer Garten
- Westausrichtung
- Ruhige Lage an Wendehammer
- 2 Bäder
- 1 Gäste-WC
- Gartenhütte
- Freistehend
- Renovierungs- / Sanierungsbedürftig

Lage

Ittersbach, ein malerischer Ortsteil der Stadt Karlsbad im Landkreis Karlsruhe, vereint ländliche Idylle mit einer hervorragenden Anbindung an die umliegenden Städte. Eingebettet in die sanften Hügel des Nordschwarzwalds, bietet Ittersbach eine hohe Lebensqualität mit viel Grün, frischer Luft und einem charmanten dörflichen Charakter.

Dank der direkten Anbindung an die Bundesstraße B3 sowie die Karlsruher Stadtbahn (S11) sind sowohl Karlsruhe als auch Pforzheim schnell erreichbar. Die nahegelegene Autobahn A8 sorgt zudem für eine zügige Verbindung in Richtung Stuttgart und München.

Neben der idyllischen Umgebung überzeugt Ittersbach mit einer guten Infrastruktur. Einkaufsmöglichkeiten, Schulen, Kindergärten und medizinische Versorgung befinden sich vor Ort oder in den benachbarten Karlsbader Ortsteilen. Zahlreiche Freizeit- und Sportmöglichkeiten – von Wander- und Radwegen bis hin zu Sportvereinen – machen den Ort besonders attraktiv für Familien und Naturliebhaber.

Mit seinem charmanten Mix aus ländlichem Flair, guter Erreichbarkeit und solider Infrastruktur ist Ittersbach ein idealer Wohnort für all jene, die Ruhe genießen, aber dennoch bestens angebunden sein möchten.

Sie sehen gerade einen Platzhalterinhalt von Google Maps. Um auf den eigentlichen Inhalt zuzugreifen, klicken Sie auf die Schaltfläche unten. Bitte beachten Sie, dass dabei Daten an Drittanbieter weitergegeben werden.

Mehr Informationen

Energieausweis

Energieausweis: Bedarfsausweis
Gültig bis: 24.01.2033
Wesentlicher Energieträger Öl
Energiekennwert 244,30 kWh/m2a
Energieeffizienzklasse: G
Immobilien in Ettlingen mit Immobilienverkauf, Ettlingen, Haus

PRIME VENDO Immobilien GmbH

Immobilienbüro

Weitere Referenzen

Online-Bewertung

Immobilie bewerten