Sinzheim

Grundstück für Projekt mit 8 Einheiten, Tiefgarage und Aufzug in ruhiger Wohnlage

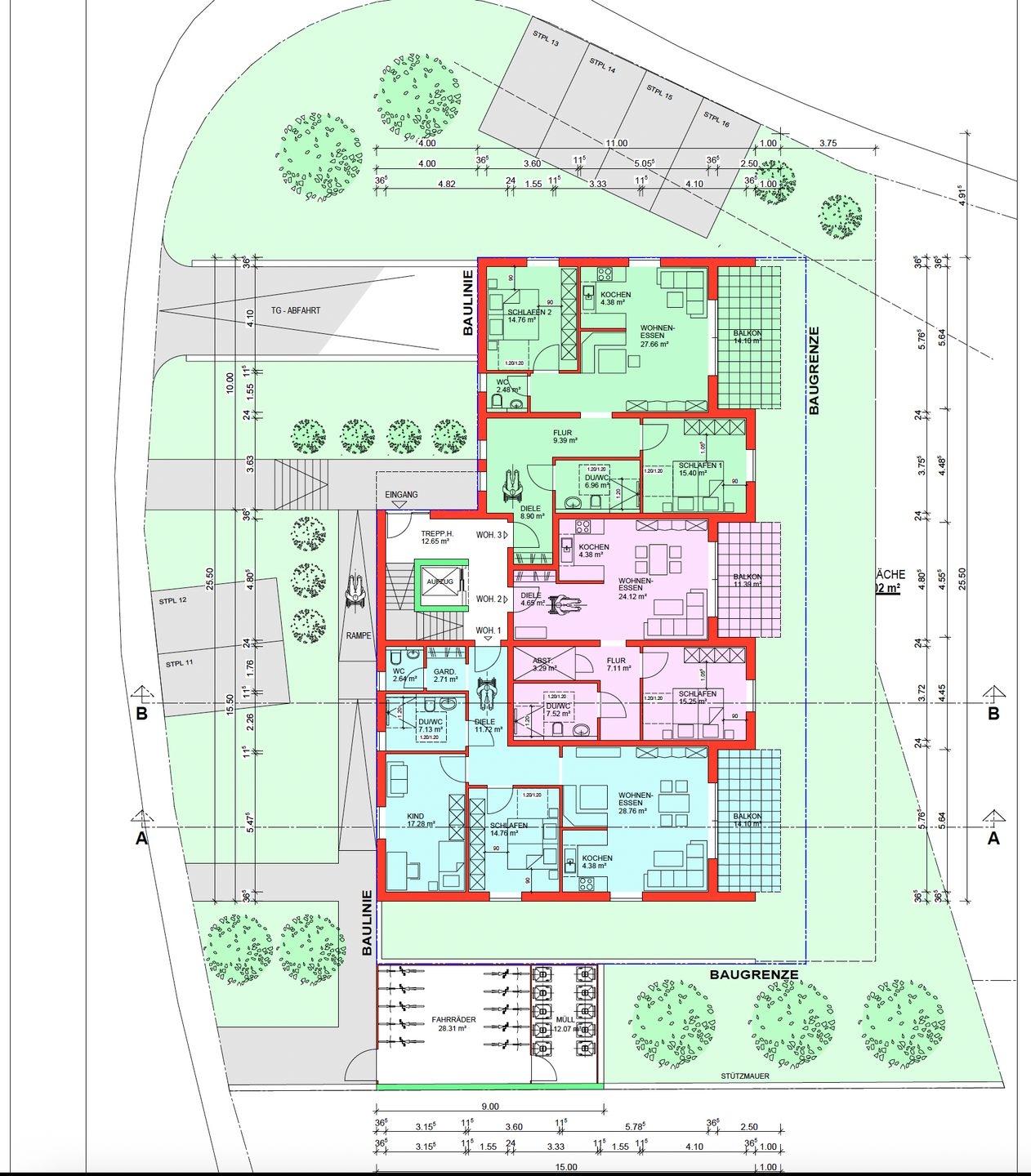
In attraktiver Wohnlage entsteht ein hochwertiges Neubauprojekt, das modernes Wohnen mit Komfort, Ästhetik und Funktionalität verbindet. Das architektonisch ansprechende Mehrfamilienhaus umfasst insgesamt acht Wohneinheiten und bietet eine großzügige Gesamtwohnfläche von rund 770 m². Auf einem ca. 1.174 m² großen Grundstück geplant, vereint dieses Bauvorhaben zeitgemäßes Design mit durchdachter Raumaufteilung – und erfüllt damit die Ansprüche an ein zukunftsfähiges, urbanes Wohnkonzept.

Die Wohneinheiten zeichnen sich durch helle, offene Grundrisse aus, die ein modernes und zugleich wohnliches Ambiente schaffen. Großzügige Fensterflächen sorgen für lichtdurchflutete Räume, während hochwertige Materialien und Ausstattungsdetails für ein stilvolles Wohngefühl sorgen. Ob als Zuhause für Paare, Familien oder Einzelpersonen – die Wohnungen bieten für unterschiedliche Lebensphasen das passende Raumangebot.

Ein besonderer Fokus liegt auf Barrierefreiheit und Komfort: Ein Personenaufzug verbindet alle Geschosse – von der Tiefgarage bis ins oberste Stockwerk – und gewährleistet einen bequemen Zugang zu allen Einheiten. Dies macht das Gebäude nicht nur für Senioren und Menschen mit Mobilitätseinschränkungen interessant, sondern auch für Bewohner, die heute schon an morgen denken.
Im Untergeschoss des Gebäudes entsteht eine moderne Tiefgarage mit insgesamt zehn geplanten Pkw-Stellplätzen. Die Tiefgarage bietet nicht nur Schutz vor Witterung, sondern auch eine direkte Anbindung an das Treppenhaus und den Aufzug – ein klarer Mehrwert in puncto Komfort und Sicherheit.

Das gesamte Bauvorhaben überzeugt durch eine gelungene Kombination aus Wohnqualität, Effizienz und architektonischem Anspruch. Die durchdachte Planung, die großzügige Grundstücksgröße und die ruhige, dennoch zentral angebundene Lage machen dieses Projekt zu einer idealen Wohnimmobilie für Eigennutzer wie auch zu einer nachhaltigen Investition für Kapitalanleger.

Grunddaten

Objektart: Haus
Objekttyp: Mehrfamilienhaus
Adresse: Bitte Kontakt aufnehmen für Informationen.
Verfügbar: Sofort

Flächenaufstellung

Wohnfläche: 766.97 m²
Grundstücksfläche: 1174 m²

Raumangebot und Ausstattung

Zimmer: 23
Badezimmer 8
Gäste-WC: 1
Zustand: Erstbezug
Ausstattung: gehoben
Anzahl Stellplätze: 10
Unterkellerung: Keller
Anzahl Balkone: 1

Preis

Kaufpreis: 850.000 €
Käuferprovision: 4,76 % inkl. 19 % MwSt.

Ausstattung

- 8 Wohneinheiten
- Gesamtwohnfläche ca. 770 qm
- Grundstücksfläche ca. 1.174 qm
- Tiefgarage mit 10 PKW Stellplätzen
- Personen Aufzug
- Top Lage im Ort Sinzheim

Lage

Dieses attraktive Grundstück befindet sich in begehrter, naturnaher Lage von Sinzheim – einer charmanten Gemeinde am Fuße des Schwarzwalds, unmittelbar vor den Toren Baden-Badens. Die Umgebung zeichnet sich durch eine angenehme, gewachsene Wohnstruktur aus, die von gepflegten Einfamilienhäusern, großzügigen Gärten und einer ruhigen Nachbarschaft geprägt ist.

In unmittelbarer Nähe laden malerische Weinberge und idyllische Feldwege zu erholsamen Spaziergängen oder sportlichen Aktivitäten ein. Gleichzeitig profitieren Sie von der sehr guten Anbindung: Der Bahnhof ist fußläufig erreichbar, die Autobahn A5 in wenigen Minuten. Einkaufsmöglichkeiten, Schulen, Kindergärten sowie medizinische Einrichtungen befinden sich ebenfalls in der Nähe und machen den Alltag angenehm unkompliziert.

Die Kombination aus naturnaher Umgebung, guter Infrastruktur und ruhiger Wohnatmosphäre macht diesen Standort besonders attraktiv – sowohl für Familien als auch für Paare oder Investoren mit Weitblick.

Sie sehen gerade einen Platzhalterinhalt von Google Maps. Um auf den eigentlichen Inhalt zuzugreifen, klicken Sie auf die Schaltfläche unten. Bitte beachten Sie, dass dabei Daten an Drittanbieter weitergegeben werden.

Mehr Informationen

Energieausweis

Immobilien in Ettlingen mit Immobilienverkauf, Ettlingen, Haus

PRIME VENDO Immobilien GmbH

Immobilienbüro

Exposé anfordern

Innerhalb von 24 Stunden erhalten

* Pflichtangaben
 SSL-verschlüsselt
Kauf

749.000 €
Karlsruhe,
76189

Viel Platz für die ganze Familie – modernes Zuhause mit Einliegerwohnung

Haus

Objektart
7

Zimmer
230 m²

Wohnfläche
434 m²

Grundstück
Kauf

149.000 €
Bad Herrenalb,
76332

Vielseitige Gewerbefläche in Bestlage – ideal für Handel, Dienstleistung & Konzepte

Einzelhandel

Objektart
Kauf

350.000 €
Eggenstein-Leopoldshafen,
76344

Helle 3-Zimmer-Wohnung mit Balkon, Tageslichtbad & Tiefgaragenstellplatz in gepflegtem Haus

Wohnung

Objektart
3

Zimmer
89.63 m²

Wohnfläche
Kauf

275.000 €
Marxzell,
76359

Historisches Bauernhaus mit Scheune und Pferdehaltung – Charmevolles Wohnen in Burbach

Haus

Objektart
4

Zimmer
117 m²

Wohnfläche
545 m²

Grundstück
Kauf

599.000 €
Walzbachtal,
75045

Modernes Reihenendhaus A+ in Wössingen – hell, energieeffizient und familienfreundlich

Haus

Objektart
5

Zimmer
147.79 m²

Wohnfläche
153 m²

Grundstück
Miete

890 €
Karlsruhe,
76199

Apartment inkl. Küche, Möbel, Bad, Internet, Smart-TV, Reinigungsservice

Wohnung

Objektart
1

Zimmer
29.5 m²

Wohnfläche

Online-Bewertung

Immobilie bewerten