Kuhardt

Sanierungsbedürftiges Einfamilienhaus in zentraler Lage von Kuhardt mit großem Potenzial

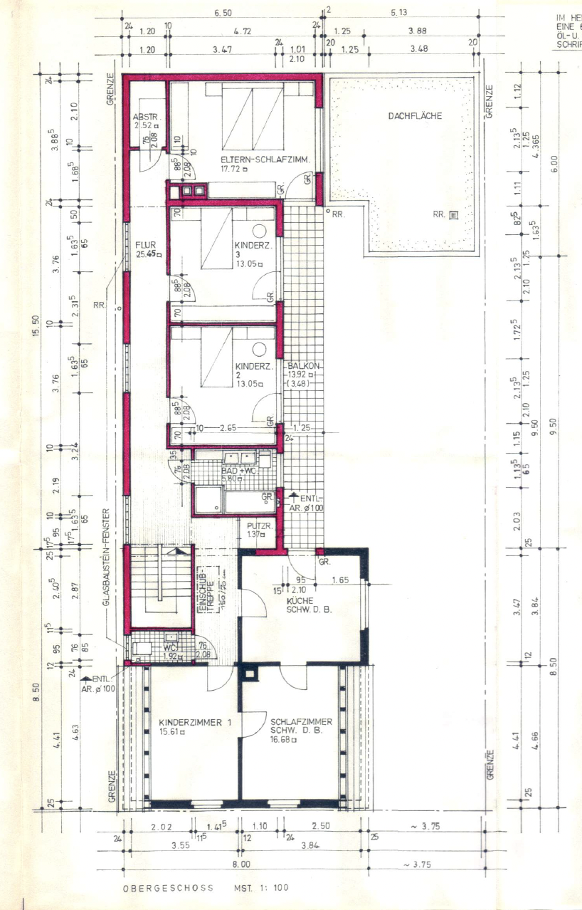
Dieses charmante Einfamilienhaus, errichtet in den 1920er Jahren in solider, massiver Bauweise, bietet eine einzigartige Gelegenheit für Liebhaber historischer Immobilien mit dem Wunsch nach Individualität und gestalterischer Freiheit. Auf einem Grundstück von ca. 300 qm erstreckt sich das großzügige Anwesen mit einer Gesamtwohnfläche von etwa 205 qm, verteilt auf zwei Vollgeschosse.

Die Immobilie wurde in den 1970er Jahren durch einen Anbau erweitert, welcher harmonisch an den Altbau anschließt und zusätzlichen Raum für individuelle Nutzungsmöglichkeiten bietet. Das Haus verfügt über insgesamt zwei Badezimmer und zwei separate WCs, die sich auf den beiden Geschossen verteilen und für eine komfortable Nutzung sorgen.

Das Objekt ist vollunterkellert und bietet neben dem Keller einen geräumigen Spitzboden, der derzeit nicht ausgebaut ist, jedoch Potenzial für zusätzlichen Wohnraum oder Lagerfläche birgt.
Im Außenbereich lädt ein Balkon zum Verweilen ein, während die großzügige Terrasse, die sich über die Garage erstreckt, ideal für entspannte Stunden im Freien genutzt werden kann. Der angrenzende Innenhof ergänzt das Angebot und bietet Raum für individuelle Gestaltungsideen.

Die Immobilie wird über eine Ölzentralheizung beheizt, die jedoch nicht mehr den heutigen Standards entspricht und möglicherweise einer Erneuerung bedarf. Der sanierungsbedürftige Zustand des Hauses bietet zugleich die Möglichkeit, es nach eigenen Vorstellungen zu modernisieren und neu zu gestalten.

Dieses Haus ist ideal für Menschen, die den Charme eines historischen Gebäudes zu schätzen wissen und bereit sind, es mit Liebe und Engagement in ein einzigartiges Zuhause zu verwandeln.

Grunddaten

Objektart: Haus
Objekttyp: Zweifamilienhaus
Adresse: Bitte Kontakt aufnehmen für Informationen.
Baujahr: 1973
Verfügbar: Sofort

Flächenaufstellung

Wohnfläche: 205 m²
Grundstücksfläche: 300,00 m²
Grundstücksfläche 45,27 m²
Nutzfläche: 45,27 m²

Raumangebot und Ausstattung

Zimmer: 8
Schlafzimmer 5
Badezimmer 2
Badfenster: Ja
Gäste-WC: 1
Ausstattung: Standard
Anzahl Stellplätze: 1
Unterkellerung: Keller
Boden: Fliesen
Anzahl Balkone: 1

Ausstattung

- ca. 205 qm Wohnfläche
- ca. 300 qm Grundstücksfläche
- 8 Zimmer
- große Garage
- Voll unterkellert
- Großer Spitzboden
- Öl-Zentralheizung

Lage

Die Immobilie befindet sich in zentraler Lage an der Hauptstraße von Kuhardt, einem idyllischen Dorf im Herzen der Pfalz. Kuhardt zeichnet sich durch seine ländliche Ruhe und die gleichzeitig gute Anbindung an umliegende Städte aus, was es zu einem attraktiven Wohnort für Familien und Pendler macht.

Die Hauptstraße verbindet das Dorf mit den benachbarten Gemeinden und bietet eine gute Erreichbarkeit sowohl mit dem Auto als auch mit öffentlichen Verkehrsmitteln. In direkter Umgebung des Hauses finden sich die wichtigsten Einrichtungen des täglichen Bedarfs, darunter ein Supermarkt, Bäckerei, Apotheke und weitere Geschäfte sowie einige gastronomische Betriebe, die das Leben in Kuhardt angenehm und bequem gestalten.

Kuhardt ist eingebettet in eine malerische Landschaft, die zu Spaziergängen und Freizeitaktivitäten in der Natur einlädt. Die Rheinnähe ermöglicht zudem Ausflüge in das Naherholungsgebiet am Rhein, wo man Erholung und Natur pur genießen kann. Die Anbindung an die B9 sorgt dafür, dass auch die Städte Germersheim, Landau und Karlsruhe in kurzer Zeit erreichbar sind, was die Lage für Berufspendler besonders attraktiv macht.

Durch die Lage an der Hauptstraße ist das Haus gut sichtbar und leicht erreichbar, dennoch bietet es durch die Gestaltung des Grundstücks ausreichend Rückzugsmöglichkeiten und Privatsphäre. Diese Lage verbindet die Vorteile des ländlichen Lebens mit einer guten Erreichbarkeit und einer soliden Infrastruktur.

Sie sehen gerade einen Platzhalterinhalt von Google Maps. Um auf den eigentlichen Inhalt zuzugreifen, klicken Sie auf die Schaltfläche unten. Bitte beachten Sie, dass dabei Daten an Drittanbieter weitergegeben werden.

Mehr Informationen

Energieausweis

Energieausweis liegt bei der Besichtigung vor.
Wesentlicher Energieträger Öl
Immobilien in Ettlingen mit Immobilienverkauf, Ettlingen, Haus

PRIME VENDO Immobilien GmbH

Immobilienbüro

Weitere Referenzen

Online-Bewertung

Immobilie bewerten